(来源:邯郸市总工会)
邯 郸 市 总 工 会 温 馨 提 示
明日日期 明日限号12月2日(周五)
5和0引言
随着社会的高度发展及人们物质生活水平的不断提高,“构筑安全、美观舒适”成为了新时期人们对于室内环境的更高要求。时代发展的脚步越来越快,人们对自身生活工作的环境需求已经不仅仅只满足功能需求,而是有了更高层次的精神追求[1]。手工艺品制作,不仅提高了人们的审美能力、锻炼了人们的动手能力、开发了人们大脑的创造力,而且满足了人们更高层次的精神需求。所以指创工艺坊以青春、活泼的色彩为主,为人们提供一个清新、靓丽的创作空间。
1前期分析
“指创”工艺坊位于贵州省贵阳市花溪区,花溪拥有独特的历史人文环境和丰富的自然景观资源,被孔子学堂、贵州大学与贵州民族大学环绕。东毗大将山,西临花溪水,俯瞰十里河滩中段,风景如画。花溪大道路经此地,交通便捷。地理位置优越,毗邻学校与景区,客流量多且文化底蕴丰厚。植被覆盖率高,环境优美、空气清新。远离市中心的喧闹,客流量多。手工艺坊空间定位现代简约风格,迎合年轻人喜好的元素,以兰花为主题将现代风格融入到室内空间中,为周围居民与学生提供一个放松创作的手工空间。
1.1设计原则
工艺坊遵循特色化、整体性、合理划分功能布局的总体原则。巧妙运用设计元素融合到空间中,体现创作空间氛围。
1.1.1特色化原则
工艺坊在年轻群体中作为消费点是一个独特的存在,对于工艺坊的空间设计要从消费者心理与情感的角度作为出发点。现代年轻人追求的就是一种个性、独特的事物,因此设计既要新颖也要满足个性化要求,每个空间的设计都体现出特色。指创工艺坊中使用对比鲜亮的色彩,绿色在空间中大胆运用,营造出一个青春、有生气的空间。
1.1.2整体性原则
在空间中,整体上既有统一又有对比。色调上,在大量白色中掺杂绿色,用橘色作为点缀,点亮了整个空间。空间整体氛围呈现一个青春活泼的气息。
1.1.3合理划分功能布局原则
在功能布局上,根据人们追求多样性、新鲜感的需求,划分不同的功能分区,主要为花艺制作区和微景观制作区。针对顾客的人数与私密性划分,在空间布局中有多人制作区与封闭制作区。在照明上,考虑到制作花艺或微景观时需要光线充足,因此吊灯与筒灯为顾客提供充足的光源。在空间的每个功能设计上,均从“人”的角度作为考量点,设计出一个让人舒适的空间。
1.2元素提取
“兰花”作为贵阳的市花,具有高雅、淡泊之寓,是花中四君子之一,也是纯朴、典雅、贤德的象征。所以本设计主要运用提取兰花的叶子、花瓣形状以及兰花素白、翠绿的颜色运用到设计中,结合现代设计特点,将兰花“灵活性”“随意感”“洁白”等特征与建筑融合在一起,设计出有手工坊气息且受年轻人喜爱的空间(如图1)。


图1 放射状设计
1.3设计定位
“指创”作为手工坊的名字,“指”是手指的意思,“创”为大胆创作,创造新事物。“指创”是用心、用脑大胆想象,发散思维,用手指创造出与众不同、属于自己的艺术品。工艺坊所针对的对象为年轻群体所处空间,是一个安静且能让人忘记喧闹、放松、解压的娱乐场所。在这里,可以安静地制作自己喜欢的东西赠与自己或朋友家人,在创作中发挥自身想象力,体验亲历而为的创作感。
2设计解析
2.1建筑外观设计
建筑设计风格为现代风格,建筑的外观墙体并不是单一、整齐的。外墙上运用的不同材质、不同颜色进行搭配,采用对称、均衡规律,用几何将这面墙分割为两个矩形,展现外墙的设计感与美感。工艺坊有两个入口,主入口可直接进入室内,次入口则需经过一条长廊。设计两个入口的目的是根据人们就近原则心理,可使顾客更便捷地进入室内,也使建筑更具美感。在次入口处设计了可种植植物的地方,方便就地取材,美化环境。建筑外设计了水景,水中倒映建筑外观, 整体上体现出现代建筑的美感。
2.2 建筑内部设计
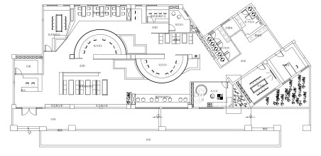
在室内设计中, 了解人体工程学的各种尺度, 是确定各项空间设计的依据。室内设计不但要注重设计和人体尺度的关系,而且要适应人的视觉规律[2]。指创手工艺坊根据功能划分不同区域, 具备能满足人们创作、工作的不同功能。创作区分为两类,一是运用干花、画框、干树枝等进行花艺画框制作的花艺制作区,二是运用苔藓、砂石、种植土等进行制作的微景观制作区。除此则有为满足结账、接待、迎客的空间——大堂, 满足会客办公的空间——办公室。满足卫生清洁的空间——洗手间、洗溢区。满足工作交流的空间——会议室。满足娱乐、欣赏的空间——小景区。此外还有作品展示区域,它主要是展示顾客的优秀作品或需要出售的物品(图2)。

图2 平面空间布局
2.2.1 大堂
大堂,作为进门的第一印象,应当让人眼前一亮。在生活加快的现代,很多人已经厌倦了过于庄重、繁华的装饰,开始追求简洁、大方、自由、自然的环境,人们在这样的空间中能感到舒适、放松[3]。因此,工艺坊大堂的整个设计都是围绕现代简洁风格来设计的,大堂背景墙采用绿色, 与白色大理石台面形成对比。用圆打破平衡感, 既方便后厨饮料的配送,又与室外的圆相呼应, 使整个建筑相统一。台面设计为“U”形,方便顾客结账和放置物品。考量到安全性,大堂地面材质与创作区是不同的,大堂采用仿古砖,既防滑又便于清洁。工作区则用木地板,给人温馨的氛围(如图3)。

图3 效果图
2.2.2 花艺制作区
花艺制作区有封闭区、半开放区、半开放区。不同制作空间运用了不同的装饰风格。半开放区为两个半圆形成,平面上两个半圆对整个平面布局进行分割,用木条进行隔断,形成两个独立空间,使空间布局更加灵活。顶用圆顶,中间采用茶镜装饰。封闭区的元素运用主要以绿色为主,墙上采用兰花花径纹路转化为几何图形进行重组,交错形成阶梯式装饰样式,电视嵌在中间, 使墙面具有错落的美感。另一面墙上,用制作的成品花艺相框画进行装饰,在入门处,设置展示柜,展示学员优秀作品及想出售的作品(图4、图5)。

图4 效果图

图5 效果图
2.2.3 微景观区
人具有社会性、主体性和生物性的特点,与此相对应,人对空间的需求表现出公共性、私密性和领域性的要求[4]。私密性空间是人们现在比较注重的,因此,微景观区也分为封闭区、半开放区及开放区。具体为地面抬高,木地板材质为深色木地板,运用隔断使区域形成一个独立空间, 达到一定的隐私性。在隔断上采用吊挂式盆栽作为进行装饰,既美观,又遮挡视线,起到隐秘作用。顶上用木条和不规则分割进行装饰,木条与隔断木条相呼应,不规则区域采用绿色。微景观制作区考虑到小物品的放置,因此设计了储物柜,既能合理放置未完成作品也能展示成品,起到收纳、展示的作用(图6、图7)。

图6 效果图

图7 效果图
2.2.4 过道
过道作为必经之路,人流量大,过道的地板为防滑仿古砖,耐用且抗污强。背景墙采用阶梯式几何与花的外形、线条作为设计元素,与花艺制作区呼应。装饰画作为墙面装饰,为空白的墙面增添色彩。采用高低不平的设计制作吊顶,用吸顶灯与筒灯增加亮光,达到光线充足(图8)。

图8效果图
3 细部分析
3.1 采光分析
光对于空间来说是极具重要的,合适的光源可烘托室内氛围,也让人感到心情明亮。在工艺坊中充足的光源可让人们观察出这件作品是否缺少或有多余的地方,利于顾客对作品的完成。在空间中,除了依靠窗户提供光源,室内还搭配了各种灯具,主光源以艺术吊灯为主,且每个制作位置上都安装一个艺术吊灯,方便顾客对作品仔细观察、研究。筒灯作为次灯源,主要是为了照明交通路线。射灯作为装饰灯源,则是为了照亮装饰品,突显装饰品,美化室内。
3.2 材质分析
在材质方面,使用的材料主要有艺术漆、颗粒板、仿古砖、白色大理石为主。在整体空间中大量使用艺术漆,主要以颜色作为区分点,白色艺术漆大面积使用,绿色艺术漆点缀其中,体现出空间欢快、生机勃勃的氛围。木板材作为空间中的一个隔断、装饰的材料。在空间中起到一定的调节、缓冲作用,使整个空间的色调不会太对立,增添了空间的色彩范围,增加了人们的视觉感。石材的运用上,贵州属于喀斯特地貌,石材是贵州的一个特征,因此,石材在空间中既体现当地地域风貌,也能满足空间的功能需求、审美需求。材料是形成建筑的主要成分,材料不同给人的体验感则不同。
3.3 色彩分析
色彩搭配在室内设计中是十分重要的,色彩能够影响人们的心理,搭配出好看的空间能够使人心情愉悦、舒服。指创工艺坊的色彩搭配是运用色彩侧重、色彩平衡的搭配原理。色彩侧重是在大面积使用白色后,用绿色来点亮整个空间。色调平衡为在大面积使用冷色后再用较暖的颜色原木色、橙色来进行点缀,使空间整个色调达到平衡。所以指创工艺坊空间的色调既对比又统一。
结语
人与空间密不可分,人对空间的需求是人类的基本需求,因此要提高空间规划质量,形成空间与人相互和谐的关系[5]。设计指创工艺坊时, 以“人”为出发点、着重从人的心理、爱好等作为创作的源头,设计一个以年轻人为主体的创作空间,以靓丽的色彩作为空间的主色调,达到人与空间的和谐,并体现活泼、青春的主要特征。
文 / 李建建 武夷学院艺术学院 讲 师 硕 士
丁家珍 武夷学院艺术学院 讲 师 硕 士
胡 瑞 武夷学院艺术学院
编辑/ 张凯
审核/ 朱文清 校对 / 王鹏
更多精彩内容,详细文章见:《建筑与文化》杂志、知网、万方。
本文编排版权归《建筑与文化》所有。图片除注明外均来自网络,版权归原作者或来源机构所有。若有涉及任何版权问题,请及时和我们联系,我们将尽快妥善处理。
//////////

版权声明:【除原创作品外,本平台所使用的文章、图片、视頻及音乐属于原权利人所有,因客观原因,或会存在不当使用的情况,如,部分文章或文章部分引用内容未能及时与原作者取得联系,或作者名称及原始出处标注错误等情况,非恶意侵犯原权利人相关权益,敬请相关权利人谅解并与我们联系,我们将及时处理,共同维护良好的网络创作环境】
THE END
来源:建筑与文化工作室 (ID:chinaacsc1)
编辑:张晨阳
审核: 雷春光 刘萍
- 欢迎将好的内容分享到朋友圈 -
一个有温度、有高度的“娘家人”返回搜狐,查看更多

